首页
深蓝色
实装案例
我的小区
臻选主材
蓝盾工程
装修攻略
关于深蓝色
董事长致辞
发展历程
招贤纳士
联系方式
家装案例
别墅装修
工装案例
设计团队
VR全景
深蓝色爱家日志
热装小区
在建工地
客户见证
我要装修
实木推拉门
橱柜衣柜
卫浴五金
地砖地板
家具灯具
软装饰品
净水环保
水电辅材
基装材料
蓝盾工艺
服务流程
项目经理
装修讲堂
最新资讯
独家策划
案例详情
网站首页
>
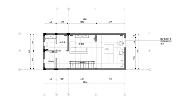
案例说明:
装修风格
:中式风格
城 市
:乌鲁木齐
房屋户型
:五室
楼盘名称
:绿城百合公寓——中式风格
房屋面积
:平米
分享到:
分享到:
设计师:徐莉
从业年限:8年
案例数量:
15
擅长风格:现代极简,意式轻奢,轻法式,新中式
设计师资质已通过公司认证
免费预约徐莉设计师
查看徐莉设计的案例
1
/
13
1
2
/
13
2
3
/
13
3
4
/
13
4
5
/
13
5
6
/
13
6
7
/
13
7
8
/
13
8
9
/
13
9
10
/
13
10
11
/
13
11
12
/
13
12
13
/
13
13
TA
的其他案例
绿城百合公寓——中式风格
轻奢风格
绿城翡翠园——现代简约风格
推荐案例
水墨清苑——现代风格
中南铂悦府——现代风格
锦悦府--现代简约
相关案例
MORE+
消防支队演播室
新源电视台
星云雅居——现代简约